Вилно селище Комфорт 3
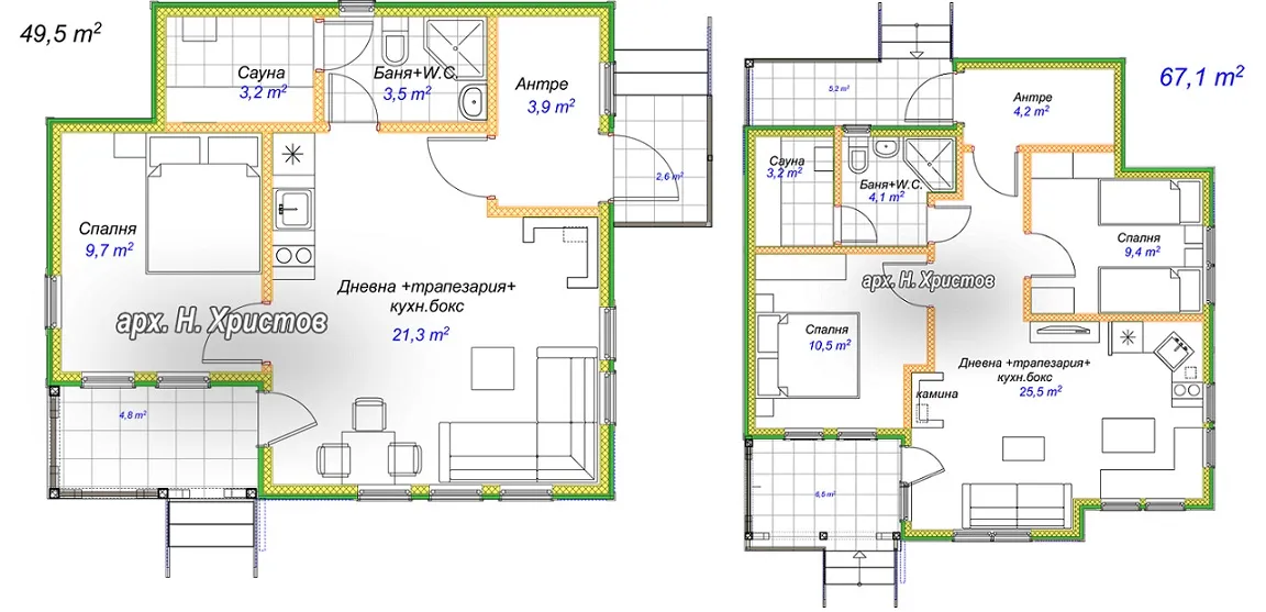
Вилно селище състоящо се от 4 броя едноетажни къщи с квадратура от 49 м², 3 броя едноетажни къщи с квадратура от 67 м² и 1 бр. административна сграда с квадратура от 83 м². Сградите са с дървена носеща конструкция, покривно покритие от керамични керемиди, панели с минерална вата и външна изолация. Входна врата - метална. Дограма - PVC със стъклопакет.

480 кв.м.

РЗП

2

Етажи

10

Спални

7

Бани

thumb
thumb
thumb
thumb
thumb
thumb

Изпратете ни съобщение

Нашия адрес

Срещи и консултации се извършват след предварителна уговорка на посочения телефонен номер

  • Стара Загора

    бул. "Патриарх Евтимий" 118, ет. 1

  • Телефон

    +359 898 999 160