Готов проект 13
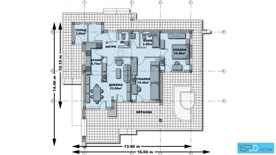
Това е еднофамилна къща предназначена за целогодишно ползване. Проектирани са всички спомагателни помещения – склад, гардеробно, перално, необходими за безпроблемното обитаване във всеки сезон. Къщата е едноетажна, с традиционни материали. Използвана е комбинация от каменна облицовка с дървени сантрачи и бяла мазилка. Дневната зона е с обособени кътове за мека мебел, трапезария и кухненски бокс. При желание кухнята може да се обособи като самостоятелно помещение. Разработени са две спални със среден размер. От жилищните помещения се излиза на обширна веранда, която е защитена от декоративна стена с арковиден отвор. Проектирано е външно барбекю, което е ориентирано към дневната зона.

Конструкцията на сградата е монолитна, стоманобетонна с тухлени ограждащи стени. Проектът е разработен и във вариант със сглобяема дървена конструкция или със сглобяеми модули. Покривът е четирискатен, покрит с керемиди.

Минималното лице на парцела към улицата е:
за жилищно строителство - 22м
за вилно строителство - 24м

99 кв.м.

РЗП

1

Етажи

2

Спални

2

Бани

thumb
thumb
thumb
thumb

Изпратете ни съобщение

Нашия адрес

Срещи и консултации се извършват след предварителна уговорка на посочения телефонен номер

  • Стара Загора

    бул. "Патриарх Евтимий" 118, ет. 1

  • Телефон

    +359 898 999 160